- 1 : 2021/03/08(月) 13:35:34.97 ID:QxD6xFjpp
マンション投資のメリットデメリット
http://www.nihonzaitaku.co.jp/qa/qa_no/qa_3.html- 2 : 2021/03/08(月) 13:35:53.54 ID:e+9FvTDtp
- されない
- 3 : 2021/03/08(月) 13:35:53.59 ID:QxD6xFjpp
なんだこれ- 23 : 2021/03/08(月) 13:39:57.25 ID:Ci9Q0mVf0
- >>3
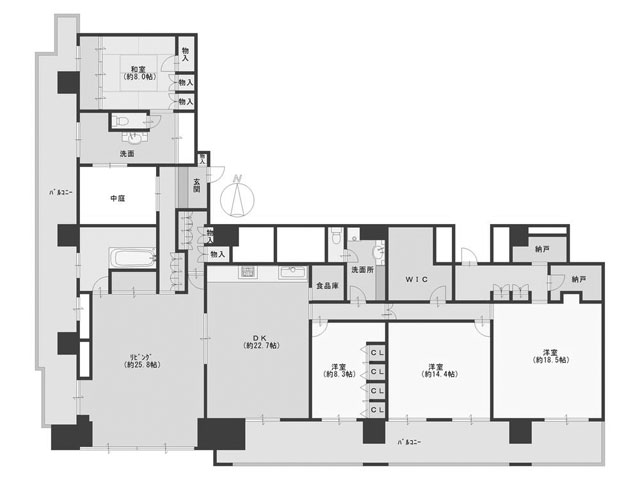
洗面所と和室は、中庭かバルコニー経由でしか行けないのか - 144 : 2021/03/08(月) 13:57:00.06 ID:NOuyuRYV0
- >>23
マジや
こんなん土砂降りの日とかどうすんねん - 59 : 2021/03/08(月) 13:44:11.59 ID:CCboI9Cq0
- >>3
確かにとんでもねーな
見れば見るほどおかしい タダでも要らんレベルのキチゲェ設計 - 152 : 2021/03/08(月) 13:58:35.45 ID:lvPoXZt6d
- >>59
タダなら売り用に貰うだろバカか - 73 : 2021/03/08(月) 13:45:42.37 ID:ESWOhFpP0
- >>3
和室と洗面室の位置逆だろ
中庭から見えるのは和室の方がいい - 83 : 2021/03/08(月) 13:47:00.29 ID:JC9gICZB0
- >>3
風呂の脱衣所は? - 84 : 2021/03/08(月) 13:47:06.93 ID:ESWOhFpP0
- >>3
風呂もとんでもないところにあるな
なんだこりゃ使い辛え - 107 : 2021/03/08(月) 13:51:00.97 ID:0hjFGhbJ0
- >>3
武蔵小杉か? - 112 : 2021/03/08(月) 13:51:55.19 ID:cGvQtx4j0
- >>3
風呂がやべぇこれ風呂ネタだろ - 117 : 2021/03/08(月) 13:52:18.64 ID:Y0Di2sDD0
- >>3
想像の何倍くらいとんでもないのかスレタイに入れろ - 125 : 2021/03/08(月) 13:54:04.06 ID:bhAedVpkd
- >>3
避難距離大丈夫なんだろか - 159 : 2021/03/08(月) 13:59:24.01 ID:7JaTbjaY0
- >>3
右の部屋外出るとどうなってんの? - 164 : 2021/03/08(月) 13:59:47.30 ID:+6XXz4sga
- >>3
二面バルコニーて最高すぎる - 4 : 2021/03/08(月) 13:36:01.27 ID:xVMlrZEaa
- 2ゲット
- 5 : 2021/03/08(月) 13:36:29.83 ID:ifcrtm570
- ネタだろ
- 6 : 2021/03/08(月) 13:37:30.83 ID:KjV3rG2e0
- 中庭w
- 7 : 2021/03/08(月) 13:37:36.47 ID:flxX73YKM
- ん?中庭ってなに
- 38 : 2021/03/08(月) 13:41:52.50 ID:6EUGjUXS0
- >>7
京町家とかによくある坪庭みたいなもんだろ - 8 : 2021/03/08(月) 13:37:39.03 ID:yrWl17XQ0
- 1フロアの半分使ってんのか
掃除大変そう - 9 : 2021/03/08(月) 13:37:39.16 ID:SABxeZQ70
- 何人暮らしならこの広さ必要になるんだ
- 19 : 2021/03/08(月) 13:39:11.46 ID:e+9FvTDtp
- >>9
YouTuberが1人で住んでそう - 10 : 2021/03/08(月) 13:37:50.23 ID:0MpxgkTC0
- 玄関から北側の和室に直接アクセス出来ないのが意味わからんな、離れなのか?
- 11 : 2021/03/08(月) 13:37:52.42 ID:d5NHRFcO0
- タワまん!
- 12 : 2021/03/08(月) 13:38:04.64 ID:nM0BHTyOd
- 上の和室は監禁用?
- 13 : 2021/03/08(月) 13:38:18.74 ID:O7Bv1M8C0
- 億ションってやつだろどうせ
- 14 : 2021/03/08(月) 13:38:32.33 ID:oiFdCnRh0
- 10億くらい?
- 15 : 2021/03/08(月) 13:38:45.59 ID:qdON+Hgk0
- 俺の部屋じゃん
- 16 : 2021/03/08(月) 13:38:51.78 ID:0sml2jK9a
- なんか洗面所と風呂の配置が悪くて使い勝手悪そう
- 94 : 2021/03/08(月) 13:48:08.08 ID:vbeJqYX/0
- >>16
そっちのは和室の住人のための物だろう。住む人のための事を考えた家だ。
- 17 : 2021/03/08(月) 13:38:52.78 ID:yHqYrbGqM
- ワクワクするな
- 18 : 2021/03/08(月) 13:38:53.92 ID:KjV3rG2e0
- 一部屋がデカすぎる
- 20 : 2021/03/08(月) 13:39:21.59 ID:/CrnYxv1a
- 一番右の洋室は長男の部屋だな
長男だから一回バルコニー出なきゃ部屋入れないが我慢しろ - 92 : 2021/03/08(月) 13:47:34.66 ID:keeGRftT0
- >>20
座敷牢になるだろう - 114 : 2021/03/08(月) 13:52:08.42 ID:VozuixtU0
- >>20
炭治郎「…」 - 21 : 2021/03/08(月) 13:39:31.65 ID:g8JmmKpL0
- え?何で駄目なの?
今住んでる昭和の高度成長期に粗製乱造された築50年近い半分傾いた
ひっかくとボロボロ崩れる繊維壁やガラスに宇宙や葉っぱの模様が付いてるアルミサッシのオンボロ極狭一軒家より広くて良さそうに見えるんだけど - 22 : 2021/03/08(月) 13:39:47.25 ID:2SnpBWafd
- 375 風吹けば名無し 2021/03/07(日) 18:01:14.89 ID:uWBbuBNq0
上の階に小さい子供20人位と住んでるとこなんかは夜中にドカドカ走り回る音がうるさい時もあるよ - 27 : 2021/03/08(月) 13:40:29.48 ID:e+9FvTDtp
- >>22
そんなたくさんの子供と住んでるとかジャニーさんかよ - 157 : 2021/03/08(月) 13:59:23.76 ID:uwfP/tgs0
- >>22
あっ… - 24 : 2021/03/08(月) 13:40:04.64 ID:MyW/SnaA0
- こんなんで億超えだもんんあ
- 25 : 2021/03/08(月) 13:40:06.79 ID:kwniT/T3a
- お前らの彼女もこういうマンションでパパのおっさんに種付けされているんだよな
- 26 : 2021/03/08(月) 13:40:17.36 ID:VrcimZU/d
- 中庭超えてトイレかよと思ったけど世帯別れてんのかね
今どき普通だわなこの間取り - 28 : 2021/03/08(月) 13:40:36.08 ID:hMyRWmoz0
- ルンバが途中で力尽きそう
- 29 : 2021/03/08(月) 13:40:53.10 ID:KGbqeVeAM
- ケンモハウスにちょうどよくないか?
- 30 : 2021/03/08(月) 13:41:04.71 ID:KqqJXI2vM
- 磯野家より広いじゃん
- 31 : 2021/03/08(月) 13:41:07.29 ID:FW6AUd070
- リビング強制通過はキツイな
- 32 : 2021/03/08(月) 13:41:30.04 ID:nagnUrWX0
- トイレ何個?
- 33 : 2021/03/08(月) 13:41:30.74 ID:0sml2jK9a
- 北側の和室はトイレと洗面もセットで介護老人の部屋にはいいな
- 34 : 2021/03/08(月) 13:41:39.99 ID:sepxXu+FH
- 中庭ってなんだよ
ペントハウスか? - 35 : 2021/03/08(月) 13:41:40.15 ID:ScJKVVtx0
- 陣内のコントにありそう
- 36 : 2021/03/08(月) 13:41:41.36 ID:4LBtuiWRp
- 右下の4部屋、リビング通らないといけない糞間取りかと思ったら、右上に別の出入口あったは
でもこれじゃ、子供が家にいるのかいないのかもわからなそうだな
- 37 : 2021/03/08(月) 13:41:46.26 ID:0MpxgkTC0
- 8畳の和室にだけアホみたいにクローゼット配置されてて良くみたら色々おかしい
- 39 : 2021/03/08(月) 13:42:03.03 ID:0MpxgkTC0
- もとい、洋室
- 40 : 2021/03/08(月) 13:42:37.68 ID:g8JmmKpL0
- WICつまり芸能人がよく首釣ったりするウォークインクローゼットがあるんだな
大体ウォークインクローゼットだけで自分の部屋より広いとかあるからな最近の家は - 41 : 2021/03/08(月) 13:42:44.55 ID:VkpviZQqM
- 風呂への扉がリビング?真っ裸でリビング行けってことか?
- 42 : 2021/03/08(月) 13:42:53.64 ID:oh+B7RC20
- 西日きつそう
- 43 : 2021/03/08(月) 13:42:53.68 ID:ypyP/8KQ0
- 和室は中庭を通るってこと?茶室かなんか?
- 44 : 2021/03/08(月) 13:42:55.24 ID:4LBtuiWRp
- てか、風呂はリビングインなのかよwww
絶対イヤだわこんなのwwwwww - 45 : 2021/03/08(月) 13:42:56.63 ID:/D8TPxDL0
- 風呂のあるリビング
- 61 : 2021/03/08(月) 13:44:15.79 ID:FW6AUd070
- >>45
ホンマや
てか脱衣所どこだろうな - 46 : 2021/03/08(月) 13:42:58.82 ID:+n5O05NDM
- こどおじ隔離スペースじゃん
- 47 : 2021/03/08(月) 13:43:23.51 ID:EX1y/KAH0
- 中庭挟んだトイレ別和室があるあたり祖父母同居の二世帯かと思ったけど
1番右の18畳の部屋はベランダか外からしか繋がってなくて室内からドア通じてないんだ? - 48 : 2021/03/08(月) 13:43:25.66 ID:5MVUu13pr
- 中庭って屋根あるのかな?
- 49 : 2021/03/08(月) 13:43:27.65 ID:L4xiCWCza
- これだけ広くてダイニングキッチンなの?
- 50 : 2021/03/08(月) 13:43:27.72 ID:Sb848osS0
- 和室一個もらえればいい
- 51 : 2021/03/08(月) 13:43:27.76 ID:pSRTN5hg0
- これでバスルームひとつ?
- 52 : 2021/03/08(月) 13:43:35.54 ID:Uj/hTFMCM
- ここまで広くないけど知り合いの家もいきなり中庭あったな
マンションと言うか低層で2階建てでつながってる長屋みたいな
高級長屋みたいなとこだったから光も入ってきててよかったけど
マンションだとどうなってんだろ - 53 : 2021/03/08(月) 13:43:37.56 ID:rhoybmc4d
- カウンターキッチンじゃないのかよ
- 54 : 2021/03/08(月) 13:43:46.79 ID:ZuE2yuZCM
- 現代の座敷牢じゃん
- 55 : 2021/03/08(月) 13:43:51.57 ID:0sml2jK9a
- なんで風呂と洗面所がセットじゃないのか
金持ちの住む家とはこんなものなのだろうか - 69 : 2021/03/08(月) 13:45:13.30 ID:zj62w/CSM
- >>55
これでバグる
金持ちはセックス好きだからリビングで服脱いで風呂なんだろな - 56 : 2021/03/08(月) 13:43:51.67 ID:maBxDJT5M
- 収納多くていいね
- 57 : 2021/03/08(月) 13:43:59.22 ID:kA7FzNRVr
- 坪庭があるってことは最上階?
- 58 : 2021/03/08(月) 13:44:01.80 ID:/Ja0YSBf0
- クソ住みにくそう
- 60 : 2021/03/08(月) 13:44:11.77 ID:QHsL0xWR0
- 上の洗面とトイレはゲスト用だな
もう一つの洗面所に洗濯機置き場あるし - 62 : 2021/03/08(月) 13:44:19.91 ID:ypyP/8KQ0
- んん?トイレと風呂がかなり離れてる
なんかおかしくね - 63 : 2021/03/08(月) 13:44:24.02 ID:W8WJFMu+0
- メタルラック大量に並べたい
- 64 : 2021/03/08(月) 13:44:49.76 ID:XnDL1PKfd
- 中庭かバルコニー経由しないと上の洗面行けないじゃん
- 65 : 2021/03/08(月) 13:44:55.44 ID:vayaARGV0
- トイレと風呂少なくない?
- 66 : 2021/03/08(月) 13:45:01.94 ID:UjOsgw1H0
- なんでこんな作りにしてしまったんっていうところに部屋あるな
- 67 : 2021/03/08(月) 13:45:07.08 ID:CCboI9Cq0
- コラじゃねーのかと疑うレベル
- 68 : 2021/03/08(月) 13:45:11.10 ID:Uq+tEHwE0
- CL
CL
CL
CL - 70 : 2021/03/08(月) 13:45:19.48 ID:maBxDJT5M
- 俺もサンシャイン60のすぐ横にあるタワマン買おうか迷ってるけどランニングコストが結構かかるんだよね
- 78 : 2021/03/08(月) 13:46:07.05 ID:e+9FvTDtp
- >>70
一棟買うんか? - 141 : 2021/03/08(月) 13:56:30.78 ID:VyDZFPG90
- >>70
戦犯が処刑された場所だから出るらしいぞ - 71 : 2021/03/08(月) 13:45:23.88 ID:KQI2hHJEr
- 風呂の位置がおかしい
一瞬和室に気を取られるが客間、もしくは父母の部屋と思えばこれはアリ
ただ風呂とウォークインクローゼットの位置は逆だろう
- 72 : 2021/03/08(月) 13:45:26.07 ID:484vURrlM
- これ玄関ねえじゃん
- 87 : 2021/03/08(月) 13:47:20.81 ID:CCboI9Cq0
- >>72
いや玄関はあるけど、この広さのマンションに対して玄関の狭さが異常
ウォークインシューズクローゼット付いててもいいレベルなのにちっこい靴箱ひとつだぜ? - 98 : 2021/03/08(月) 13:48:45.27 ID:484vURrlM
- >>87
ほんとだ
あったわ - 74 : 2021/03/08(月) 13:45:46.96 ID:f0Hgx9bD0
- 1人暮らしだと左側だけしか使わなそう
気が付いたら1年以上あの部屋入ってないなってなるわ - 75 : 2021/03/08(月) 13:45:48.16 ID:yEIfuQR90
- 中庭は草
- 76 : 2021/03/08(月) 13:45:58.63 ID:BNTcxG/l0
- 普通に茶室が付いてるだけやん
無教養な>>1を晒上げとくか
- 77 : 2021/03/08(月) 13:46:04.74 ID:ZNtZ4sSf0
- 事故物件無理矢理繋ぎました感
- 79 : 2021/03/08(月) 13:46:19.41 ID:98ixU3SW0
- なんかめっちゃ広いな
- 80 : 2021/03/08(月) 13:46:44.21 ID:EX1y/KAH0
- こどおじ2匹飼えるな座敷牢2つあるし
- 81 : 2021/03/08(月) 13:46:49.27 ID:UjOsgw1H0
- 脱衣所ないん?
- 82 : 2021/03/08(月) 13:46:58.53 ID:6cRVozKM0
- 和室は茶とかやるならわからなくもない
1番の謎は風呂 - 85 : 2021/03/08(月) 13:47:19.03 ID:40q2Ommo0
- 中庭いるか?
- 86 : 2021/03/08(月) 13:47:19.32 ID:cxNPRWlcM
- 中庭から風呂覗ける設計
- 88 : 2021/03/08(月) 13:47:23.35 ID:U7wRq04s0
- 縁側と障子がなけりゃ和室って寒いだけだよな
- 89 : 2021/03/08(月) 13:47:26.13 ID:nxNtMUhC0
- 何が問題なの?意味わからん
- 102 : 2021/03/08(月) 13:49:34.84 ID:v2qse9Nsp
- >>89
風呂が居間の目の前にあるからこんなに部屋あっても一人しか住めない - 90 : 2021/03/08(月) 13:47:28.57 ID:P08MBsxfM
- 中庭のアクセスの悪さなんなんだよ
とってつけたような中庭の不自然さ - 91 : 2021/03/08(月) 13:47:32.45 ID:Osj4pDNI0
- 風呂とリビングの繋がりどーなってんだこれ
- 93 : 2021/03/08(月) 13:47:51.51 ID:0lZELYjI0
- 風呂がおかしいな
- 95 : 2021/03/08(月) 13:48:42.19 ID:kWWj7S2y0
- 完全に間取りから隔離されてる謎の空間がちょくちょくあるのはなんや
収納スペースって感じでもないし - 96 : 2021/03/08(月) 13:48:42.47 ID:TgaD5A4u0
- 色々おかしいな。玄関→洗面所が通れたとしても洗面所通らないといけない西向き和室8畳て
- 97 : 2021/03/08(月) 13:48:45.22 ID:IeJFje+Q0
- うちのマンションも最上階だけこんな感じになってて部屋数少ない
- 99 : 2021/03/08(月) 13:48:47.76 ID:6VvRQAvYr
- 民泊用?
- 100 : 2021/03/08(月) 13:48:51.58 ID:JC9gICZB0
- 他の写真もくれよ
- 101 : 2021/03/08(月) 13:49:02.71 ID:wZKw6Bit0
- マイクラで何も設計しないで適当に作った家
- 103 : 2021/03/08(月) 13:49:35.06 ID:45yS70qs0
- 左上はゲストルームって事なんだろうけど玄関から中庭必ず経由する構造で草
- 120 : 2021/03/08(月) 13:53:08.00 ID:kWWj7S2y0
- >>103
リビング経由で長ぇバルコニーを見せびらかすことで客を威圧する間取り
部屋に通した後で「お客様専用の洗面もありますわよ!」「中庭なんかもありますわホホホ」と畳み掛けるスタイル - 153 : 2021/03/08(月) 13:58:59.46 ID:ipfOiIV/0
- >>120
これは恥ずかしい
露地とにじり口も知らないんだろうな - 104 : 2021/03/08(月) 13:49:57.11 ID:V2cbJyik0
- 中の写真が見たいな
- 105 : 2021/03/08(月) 13:50:33.08 ID:i06qUNyN0
- クローゼットが4つもある部屋と皆無の部屋があるのはなぜだ
- 106 : 2021/03/08(月) 13:50:45.01 ID:9S1Y+f+90
- ありおりはべりいますがり
- 108 : 2021/03/08(月) 13:51:19.12 ID:P08MBsxfM
- 縦と横で違う部屋をむりやりくっ付けた&中庭は本来部屋だったが事故物件と化したためむりやり埋め立てて中庭にした
- 109 : 2021/03/08(月) 13:51:32.19 ID:J2WcYd060
- 風呂洗面和室がおかしい
中庭とかいう謎スペースも - 110 : 2021/03/08(月) 13:51:37.52 ID:98ixU3SW0
- 一度全部リセットしたほうがよさそう
- 111 : 2021/03/08(月) 13:51:48.45 ID:D8Bk71iU0
- 大阪の堀江だな
- 113 : 2021/03/08(月) 13:52:05.36 ID:BNTcxG/l0
- 中庭を通って茶室に行くのは普通だろ
風呂は広さを考えてみろ
風呂と脱衣所ってレベルじゃない広さがある
書いてないだけで中は仕切りがあるんだろ - 115 : 2021/03/08(月) 13:52:14.62 ID:MyW/SnaA0
- でもお前らってすごいよな
間取りパッと見ただけで色々変なところすぐ指摘できるんだもんな - 127 : 2021/03/08(月) 13:54:09.60 ID:qdON+Hgk0
- >>115
伊達に毎日品評会してるわけじゃねーな - 116 : 2021/03/08(月) 13:52:18.33 ID:lA4gMdfE0
- すげえな
タワマンで中庭とかイリュージョン - 118 : 2021/03/08(月) 13:52:21.72 ID:omi9ziTe0
- 本当の高級マンションはメイド用の風呂、家主用の風呂、家族用の風呂の3つ洗い場がある
これを億ションで売るって後で手放すことになるぞ
導線も微妙だし - 119 : 2021/03/08(月) 13:52:30.79 ID:3BWCczw/M
- 脱衣所どこ?
リビングに人いるときは、バルコニーでスッポンポンにならなきゃいけないの? - 121 : 2021/03/08(月) 13:53:27.63 ID:UjOsgw1H0
- 洗面所の奥がトイレってのも地味に嫌だな
- 122 : 2021/03/08(月) 13:53:34.10 ID:/CrnYxv1a
- 38階建ての37階か
- 123 : 2021/03/08(月) 13:53:42.90 ID:qrKfV1JU0
- リビングとバルコニーの間にある細長い謎の空間は何なの
かたっぽ窓付いてるし - 132 : 2021/03/08(月) 13:55:21.20 ID:UjOsgw1H0
- >>123
ほんまや
デッドスペース多いなと思ってたら窓付いてるやん、かくれんぼスペースか - 124 : 2021/03/08(月) 13:53:48.76 ID:8YiNyi3l0
- ここまでやったら上のトイレにシャワー付けろよ
- 126 : 2021/03/08(月) 13:54:09.43 ID:6W1Usu5J0
- 数十人で同居するなら良さそう
- 128 : 2021/03/08(月) 13:54:15.28 ID:7iRcS+zjd
- うちのマンションとなんか似てるな
うちは中庭は石段敷いてるから素足のままいっちゃうけど - 129 : 2021/03/08(月) 13:54:20.28 ID:Skdik1M50
- 玄関だけで6畳間くらいありそうだな
- 130 : 2021/03/08(月) 13:54:28.54 ID:omi9ziTe0
- トイレも3つ無いと後々困るな、プライベートもなさそうだし
恐らくだけど投資用ありきなんだと思う - 131 : 2021/03/08(月) 13:54:40.98 ID:c/Hx4bvF0
- 小枝不動産やん
- 133 : 2021/03/08(月) 13:55:23.77 ID:9UFnerrHM
- でかすぎんだろ…
- 134 : 2021/03/08(月) 13:55:49.41 ID:0lZELYjI0
- トイレ行くのも面倒くさそうな間取りだわ
- 135 : 2021/03/08(月) 13:55:57.06 ID:nzNKDFLj0
- 脱衣所は?
リビングで脱いでから風呂入るの - 145 : 2021/03/08(月) 13:57:00.14 ID:omi9ziTe0
- >>135
多分浴室にガラス張りの仕切があって、そこが脱衣場として利用するんだと思う - 136 : 2021/03/08(月) 13:55:59.09 ID:7aKQFWXNM
- なんちゃって二世帯?
- 137 : 2021/03/08(月) 13:56:07.52 ID:kkvAqwf60
- バルコニーという名のシースルーな廊下なんじゃなかろうか?
- 139 : 2021/03/08(月) 13:56:24.27 ID:ITRsYAro0
- トイレの横にある謎のスペースなんだよ
- 140 : 2021/03/08(月) 13:56:30.45 ID:/CrnYxv1a
- 調べたら最上階じゃん
- 143 : 2021/03/08(月) 13:56:47.60 ID:g8JmmKpL0
- 今住んでる家は一階に六畳の居間と台所風呂玄関と二階に3畳の部屋2つと六畳の親父の部屋しか無いからな
しかも最近傾いて来て扉とかちゃんと閉まらなくなって来てヤバいし
導線ウンタラカンタラとか言ってる奴居るけど誰がいまトイレに入ってるか風呂入ってるか飯食ってるか全部分かるからな
朝とかうんことご飯と洗面で大渋滞するしこの間取りなら余裕で解消されるよ - 146 : 2021/03/08(月) 13:57:13.93 ID:DV93ikSb0
- 風呂入った後、リビングやらを通らないと自室に行けないのは酷いね。これは売れんわ
- 147 : 2021/03/08(月) 13:57:14.17 ID:ITRsYAro0
- こんだけでかいのになんで風呂こんなちっさいんだよ
- 154 : 2021/03/08(月) 13:59:13.29 ID:MjqSyyIA0
- >>147
バスタブって最大サイズでも案外小さいんだわ
オーダーメイドなら知らんけど - 148 : 2021/03/08(月) 13:57:14.62 ID:yb/Limqca
- これ半分サザエさん家だろ
- 149 : 2021/03/08(月) 13:57:28.19 ID:hix5nLz6d
- スゲーな
勝ち組 - 150 : 2021/03/08(月) 13:57:33.60 ID:1TfNgeo70
- 40階ぐらいで大きな地震の経験あって、揺れが長くて恐ろしかったから
あまり高層には住みたくないんだけど、みんな気にしないもんなんだな
3~5階ぐらいで良いやって思っちゃう - 151 : 2021/03/08(月) 13:57:49.84 ID:DP9403yW0
- 座敷牢がついてるんだね
- 155 : 2021/03/08(月) 13:59:13.73 ID:LzQnduMT0
- 和室は来客のお泊まりルームだろ
- 158 : 2021/03/08(月) 13:59:23.91 ID:pLGEfxXi0
- オーダーメイドかなんかなの?
汎用性なさすぎだろ - 161 : 2021/03/08(月) 13:59:29.94 ID:mPSadc6P0
- バスルームとリビングが一緒とかタイのマッサージパーラーのVIPルームみたいな作りだな
乱交に特化した構造というか - 162 : 2021/03/08(月) 13:59:35.97 ID:kHsxPM6q0
- 上の和室は秘密部屋か?
NOVA社長の部屋みたい - 165 : 2021/03/08(月) 13:59:53.12 ID:jm8EZ2wy0
- マンションだけど、離れを作ってみました
ってコンセプトなんかな?
アホだな - 166 : 2021/03/08(月) 13:59:58.02 ID:BRQVnMPQ0
- なるほど和室は離れとか茶室をマンションで再現したってことか
- 167 : 2021/03/08(月) 14:01:10.62 ID:EsexYQL30
- 寮じゃん
【悲報】とんでもない間取りのマンションが発見せらる
嫌儲



コメント